Ardea, da porcile a allevamento per cani di razza, ok del Comune: ecco il progetto
Il Comune di Ardea ha rilasciato l’autorizzazione paesaggistica per trasformare una vecchia porcilaia in un allevamento per cani solo di razza, in via del Fosso dell’Acqua Buona. Un vero fiore all’occhiello per tutta l’area di Roma sud. L’iter si è chiuso dopo l’invio degli atti alla Soprintendenza: non essendo arrivato alcun parere nei tempi previsti dalla legge, è scattato il meccanismo del “silenzio-assenso” che ha consentito al Comune di procedere con l’ok formale. L’autorizzazione riguarda solo l’aspetto paesaggistico: servirà ancora solo il titolo edilizio vero e proprio prima di aprire l’attività.
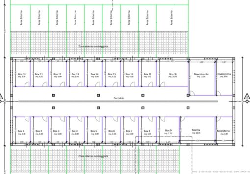
Dalla porcilaia al canile: cosa prevede il progetto di Ardea
Il fabbricato attualmente è censito come struttura agricola ad uso zootecnico (porcilaia). Il progetto autorizzato prevede la manutenzione straordinaria e il completamento dell’immobile per destinarlo a allevamento di cani di razza: finiture interne ed esterne, intonaci, pavimenti, impianti, infissi e la realizzazione delle recinzioni necessarie per ospitare gli animali. Al momento, nei documenti ufficiali si parla genericamente di “canile”, anche se la realtà è un’altra.
Vincoli e tutele: cosa si può fare e cosa no a Ardea su area vincolata
L’area è classificata come paesaggio agrario di rilevante valore e ricade tra i beni paesaggistici sottoposti a tutela regionale. Per questo il Comune di Ardea ha potuto autorizzare solo interventi che non alterino in modo eccessivo il contesto rurale.
Il tecnico incaricato ha verificato la compatibilità delle opere con il Piano Territoriale Paesaggistico Regionale, stabilendo che il progetto, così come impostato, rispetta i criteri di tutela. L’autorizzazione è concessa a condizione che l’intervento rimanga coerente con la destinazione agricola diffusa dell’area e non comprometta i valori paesaggistici riconosciuti nella zona.
Materiali, colori e recinzioni: come dovrà apparire l’allevamento di Ardea
Una parte importante della decisione riguarda l’aspetto estetico della struttura. Il Comune prescrive che l’edificio utilizzi intonaci nei toni “delle terre”, evitando colori aggressivi o finiture al quarzo. Gli infissi dovranno avere effetto legno, in modo da integrarsi con il paesaggio rurale e non creare un impatto visivo tipico di capannoni industriali.
Anche le recinzioni dovranno rispettare precise condizioni: saranno consentite in paletti e rete metallica, in parte con teli ombreggianti, ma non potranno chiudere completamente la vista, così da mantenere la “leggibilità” del fabbricato all’interno del contesto agricolo circostante.
